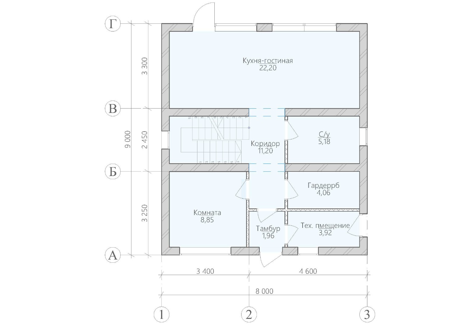
Мы строим дома без лишних расходов и рисков:
Фиксируем стоимость
Контролируем качество
Даём гарантии
